大连中天云璟总图方案公示 拟建酒店、办公、商业
admin
2021-10-08 18:00:47
0

原标题:大连中天云璟总图方案公示 拟建酒店、办公、商业

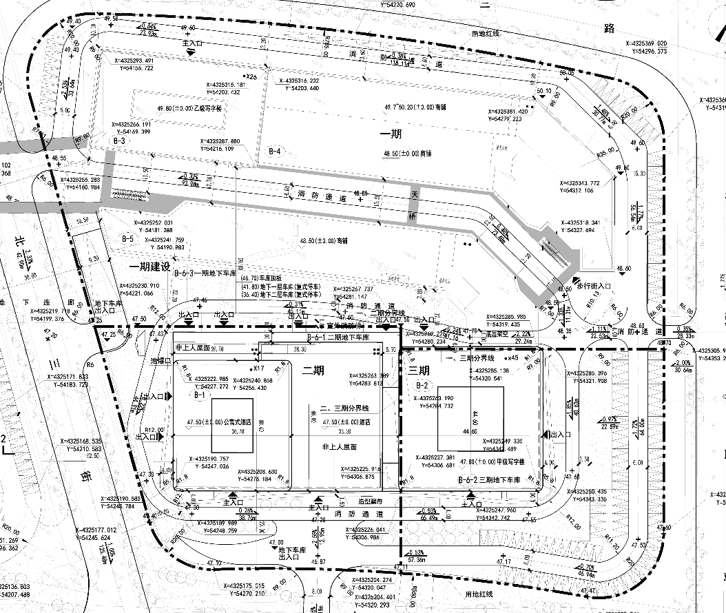
  乐居财经讯据大连市自然资源局金普新区分局日前公告,中天云璟项目总图方案审批结果已公示。项目拟建酒店、办公、商业。信息显示,该项目位于马桥子片区3单元,属商业服务业设施性质,用地面积为29040平方米,容积率为6.2,建筑控制高度需不超过180米。

文章来源:乐居买房

相关内容

热门资讯

870万罚款创三年之最,重庆农... 作者 | 刘银平编辑 | 付影来源 | 独角金融近日,重庆农商行(601077.SH)因5项违规行为...
目录价格超82亿美元!空客获国... 空客斩获国内航司A320系列大单。12月29日晚间,吉祥航空(603885.SH)发布公告称,拟与空...
行业第一也“内卷”,比亚迪供应... 12月30日,北京维通利电气股份有限公司(下称“维通利”)即将迎来深交所发审委的上市审议。本次IPO...
贵州茅台:控股股东茅台集团30... 贵州茅台控股股东增持计划已实施完毕,增持金额约30亿元。12月29日,贵州茅台酒股份有限公司(贵州茅...
2026娱乐消费指南:从“追剧... 回望2025,从上半年《漂白》引发的全民追剧热潮,到现象级爆款《生万物》带火山东文旅,再到年末《唐朝...
今年一级市场回暖,有投资人看到... 2025年即将收官,这一年里,A股IPO回暖、港股IPO火热,并购重组亦持续活跃,一级市场是否也走出...
残害中国同胞的非洲洋洋被抓,审... 绑架中国同胞的非洲洋洋终于被抓了,审问现场就挨了重重的一巴掌,网友们大呼打得好。为啥大家如此痛恨这个...
豪掷2600万加购!滨江老板娘... 继瑞安行政总裁王颖家属以逾3000万元的价格购入翠湖天地5期住宅后,滨江集团的老板娘也下场加购自家豪...
上市200天回款5.8亿,严控... 图片来源:征探君12月27日,贵州珍酒宣布,战略级大单品“大珍·珍酒”将迎来焕新升级。据悉,“大珍2...
中国海警局发布环台岛执法巡查示... 12月29日,福建海警组织舰艇编队位台岛周边邻近海域开展执法巡查,实施联合护渔、查证识别、拦截查扣等...